暮らしを美しく整える平屋ライクな家
温かみのあるベージュカラーの外壁に、段違いの片流れ屋根を組み合わせたモダンなデザインの平屋風2階建て。シンプルでありながら個性を感じさせる外観は、街並みに自然に溶け込みつつ上品な印象を与えます。タイルテラスを囲むコの字型の間取りで、室内のすみずみにまで光が届き、明るく開放感にあふれた空間をつくり出します。
Features
特 徴

FEATURE#01
テラスを囲む、シンプルであたたかな住まい
温かなベージュカラーの外壁が街並みにやさしく溶け込み、ナチュラルな印象を与える外観。そこにシャープな片流れ屋根を組み合わせることで、シンプルでありながら洗練されたモダンな美しさを感じさせる住まいに仕上がりました。家の中心にはタイルテラスを配置し、どこにいても外とのつながりを感じられる設計に。周囲の視線を気にすることなく、プライベートな時間をゆったりと楽しめる場所です。晴れた日にはテラスで朝のコーヒーを味わったり、週末には家族でBBQやお子さまのプール遊びをしたりと、気兼ねなく家族だけのひとときを満喫することができます。

FEATURE#02
効率的な動線でいつも美しく快適に
リビングまわりには収納スペースが充実しており、日々の小物や生活用品が散らかることなく、常にすっきりとした空間を維持することができます。また、水まわりが一直線に配置されているため、キッチンから洗面、ランドリーまでの動きがスムーズで家事の負担を軽減。さらに、寝室からトイレや洗面へのアクセスも良く、将来にわたって快適に暮らせる設計となっています。機能性と快適さを両立した、家族みんなに優しい住まいです。
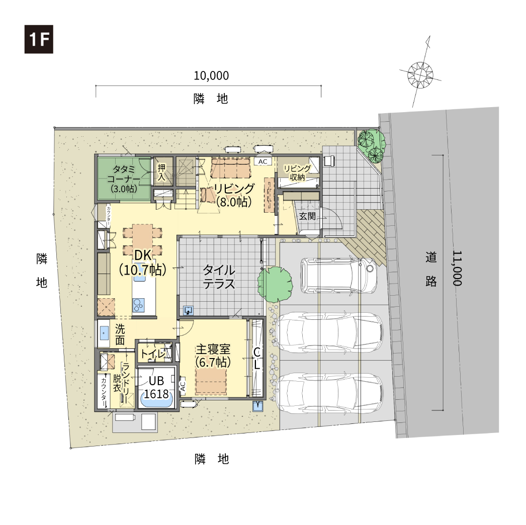
Floor Plan
間取り


住環境

松江市黒田町に、新たな大型住宅タウン「グリーンテラス黒田」が誕生しました。開発面積約4.8ha。総区画数109区画の壮大なスケール感。人々の夢と希望が詰まった松江の新しい街です。近隣には暮らしに必要な学校、病院、市役所などの公共施設から、ショッピングタウン、スーパー、カフェなどの商業施設も充実。交通のアクセスの利便性も申し分ない好立地な環境です。さあ、新しいライフステージを「グリーンテラス黒田」で始めませんか。
周辺施設・校区

約1.0km

約0.8km

約1.7km

約0.2km

約2.6km

約0.3km

約0.3km

約0.6km
アクセス
区画図


販売価格
4,500万円(税込)
価格に含まれるもの
■1階床面積/ 75.85㎡(22.94坪) ■2階床面積/ 25.32㎡(7.65坪) ■延床面積/ 101.17㎡(30.60坪)
■工事面積/ 102.51㎡(31.01坪) ■敷地全体面積/ 192.57㎡(58.25坪)
価格に含まれるもの
■土地代(14,562,000円) ■建物代 ■付帯工事 ■外構 ■照明 ■カーテン ■エアコン3台(リビング・主寝室・洋室2) ■家具 ■消費税
分譲情報
■所在地/松江市黒田町63番48 ■総区画数/109区画 ■販売戸数/7戸 ■地目/宅地 ■都市計画区域/市街化区域 ■用途地域/第1種低層住居専用地域 ■建ぺい率/60% ■容積率/100% ■道路/6mの公道に接道 ■設備/(電気)中国電力 (水道)公営(排水)公共下水道 ■完成予定/令和8年3月上旬 ■引渡予定/完成見学会後 ■備考/周辺環境の距離は現地北入り口からの移動距離を示したものです。地図上で算出しているため概算の数値です。実際とは異なる場合がありますので予めご了承ください。























