※当日予約はお電話にて
お問い合わせをお願いします
松江支店【0852-60-2881】
↑タップでかかります
※当日のご予約は時間によっては
ご希望に添えない場合がございます
【当日予約OK!】
タイルテラスを囲む、
コの字の家
【グリーンテラス黒田6-2号地】
×
雨の日も楽しめる、
インナーテラスのある家
【グリーンテラス黒田6-3号地】
毎日開催
9:00~17:00
2つのテラス、2つの暮らし方。
同じ「テラスのある家」でも、
囲む楽しさと、こもる心地よさ。
隣り合う2棟を実際に行き来しながら、
光の入り方、外との距離感、
そして「わが家ならどう使う?」を
ぜひ想像してみてください。
写真や図面だけでは分からない、
暮らしをリアルに想像できる見学会です。
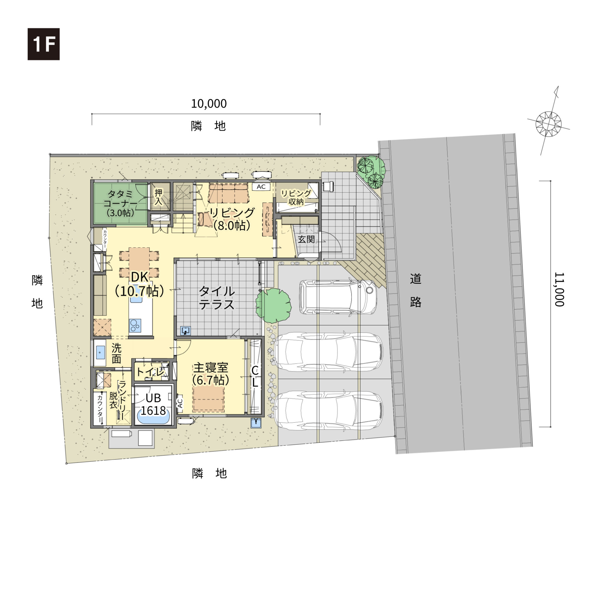
~タイルテラスを囲む、コの字の家~


★見どころポイント★
Floor Plan
間取り


3LDK+タタミコーナー|延床面積:30.60坪
~雨の日も楽しめる、インナーテラスのある家~


★見どころポイント★
Floor Plan
間取り


3LDK+タタミコーナー|延床面積:31.11坪
こんな方にオススメ!
- お家にいながらアウトドア気分を楽しみたい方
- 間取りや広さの違いを、実際に歩いて比べてみたい方
- 子どもがのびのび遊べる住まいを考えている方
- 実物を見ながら、自分たちの理想を整理したい方
詳細情報
日程
毎日開催中!
時間
9:00~17:00
会場名
グリーンテラス黒田6-2号地 建売住宅
グリーンテラス黒田6-3号地 建売住宅
開催場所
松江市黒田町
当日予約
可【大歓迎】
問い合わせ
松江支店【0852-60-2881】
ご予約方法
※「イベントを予約する」ボタンをクリックしてもご予約カレンダーに遷移します
お電話でのご予約も承ります。
自動返信メールにて受付完了のお知らせが届きます。
追って、担当者より日程確定のご連絡をいたします(日時の調整が必要となる場合もございます)。
よくあるご質問
- 予約なしでも見学できますか?
-
ご予約優先となります。予約状況によっては、ご希望に添えない場合がございます。
- 所要時間はどれくらいですか?
-
約1時間程度が目安です。
- 子どもを連れて行っても大丈夫ですか?
-
はい。安全にご見学いただけるよう、スタッフがサポートいたします。
- 駐車場はありますか?
-
現地に専用駐車場、または近隣駐車場をご用意しております。
★ご予約特典★
Amazonギフトカード10,000円分プレゼント
※ひらぎのに初めてご来場される方に限ります。
※計画のある方に限ります。
※他社にてご契約済みの方は対象外となります。
※一世帯一枚に限ります。
※公式LINEアカウントへのお友達登録が必要です。
※ご来場後、アンケートへ回答いただいた方が対象です。
※当日予約はお電話にて
お問い合わせをお願いします
松江支店【0852-60-2881】
↑タップでかかります
※当日のご予約は時間によっては
ご希望に添えない場合がございます
※当日予約はお電話にて
お問い合わせをお願いします
松江支店【0852-60-2881】
↑タップでかかります
※当日のご予約は時間によっては
ご希望に添えない場合がございます























